Hogarth Road, Edgware

  • £740,000
Hogarth Road, Edgware
For Sale

Hogarth Road, Edgware

Hogarth Road, Edgware
  • £740,000

Description

Chain-Free Extended 4 Bedroom Semi-Detached Home | Driveway | Summerhouse | Turn-Key Condition

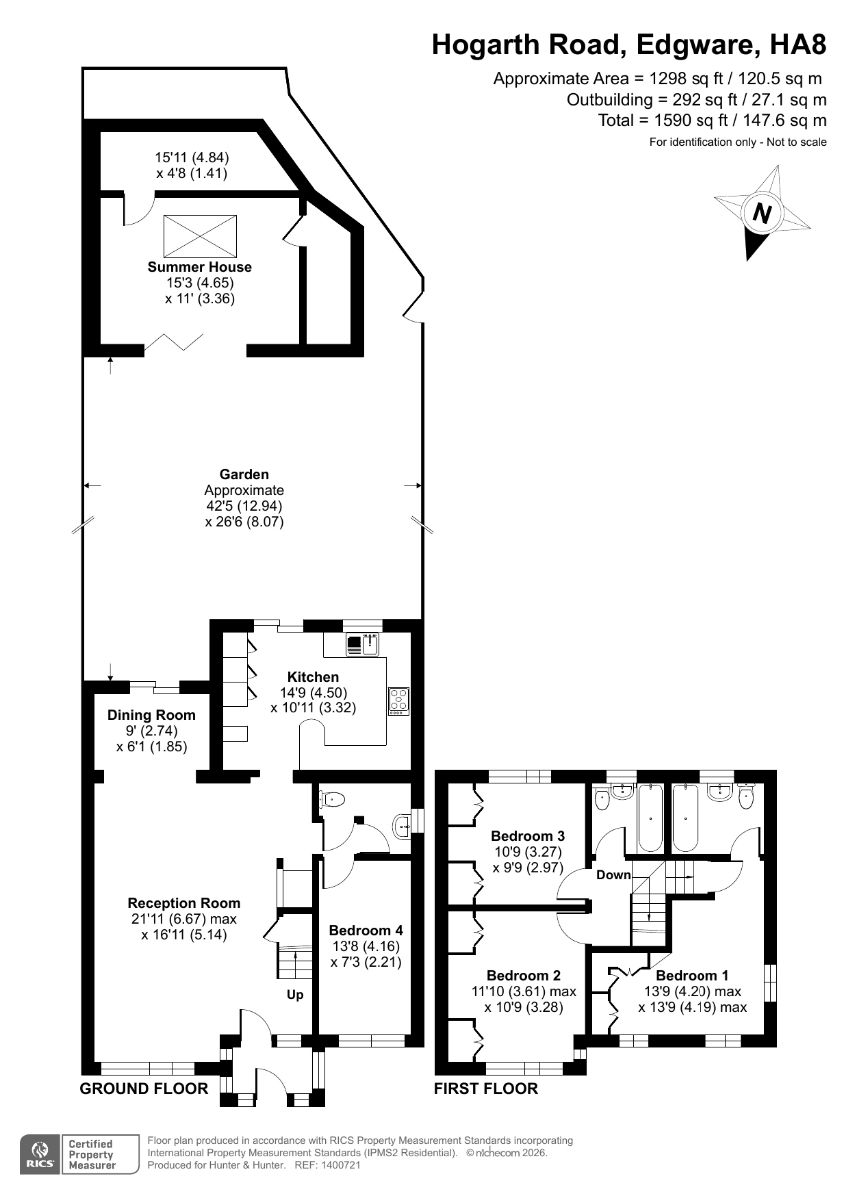
Hunter & Hunter are proud to present this exceptional four-bedroom, three-bathroom semi-detached family home, offered chain free and ready to move into.

The property benefits from a private driveway for up to three vehicles and has thoughtfully extended to the rear and side, creating generous and versatile living space throughout.

The ground floor offers a stunning open-plan living space, comprising a spacious living room with a modern media wall, dining area, and a fully fitted contemporary kitchen – ideal for family living and entertaining. A valuable side extension provides a ground-floor double bedroom and bathroom, perfect for guests, multi-generational living, or home-office use.

The rear garden is presented with paved flooring, mature palm trees, and a large, high-quality summerhouse with a skylight, ideal as a home gym, office, or entertainment space.

Upstairs, the first floor features three further bedrooms and two bathrooms. The master bedroom (king-size) and second double bedroom both include fitted wardrobes. The third double bedroom, created via the double-storey side extension, benefits from its own en-suite bathroom.

Finished to a high standard throughout, this modern home offers four full-sized bedrooms, three bathrooms, and excellent living space, making it ideal for families or buyers seeking a move-in-ready property.

Viewings Highly Recommended.

Council Tax Band: D
Tenure: Freehold

Property Documents

Brochure
EPC
  • Address Hogarth Road, Edgware, Greater London
  • City Edgware
  • State/county Greater London
  • Zip/Postal Code HA8 5TR

Details

Updated on February 10, 2026 at 8:47 pm
  • Property ID: HZ1001_RS0171
  • Price: £740,000
  • Bedrooms: 4
  • Bathrooms: 3
  • Property Type: Semi-Detached House
  • Property Status: For Sale

Floor Plans

image

Description:

Overview

Property ID: HZ1001_RS0171
  • Semi-Detached House
  • Property Type
  • 4
  • Bedrooms
  • 3
  • Bathrooms

Mortgage Calculator

Monthly
  • Down Payment
  • Loan Amount
  • Monthly Mortgage Payment
  • Property Tax
  • Home Insurance
  • PMI
  • Monthly HOA Fees
£
%
%
%
£
£
%

What's Nearby?

Please supply your API key Click Here

Contact Information

View Listings

Enquire About This Property

Similar Listings

Compare listings

Compare