Islip Gardens, Northolt

  • £520,000
Islip Gardens, Northolt
For Sale

Islip Gardens, Northolt

Islip Gardens, Northolt
  • £520,000

Description

2 Bedroom Semi-Detached Bungalow For Sale

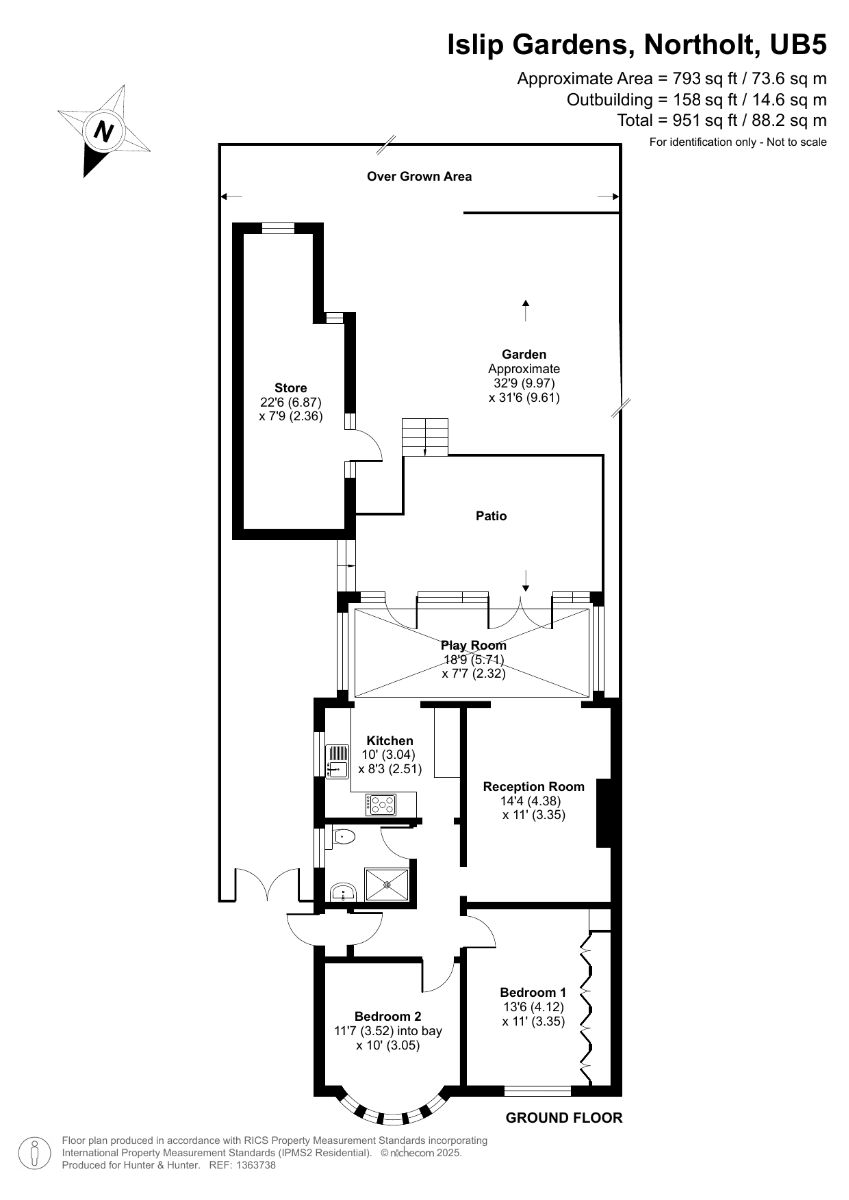
Located in the ever-popular Islip Gardens, this charming two-bedroom semi-detached bungalow offers comfortable and versatile living on one level. The property has been thoughtfully extended with a bright conservatory to the rear, providing additional space that can be enjoyed.

Inside, the home features a welcoming living room that flows naturally into the rest of the accommodation. The kitchen is well-proportioned and offers ample storage and workspace for everyday use. Both bedrooms are well sized, with the layout providing flexibility for a small family, couple, or those looking to downsize. The bathroom is conveniently located and neatly presented.

Outside, the property benefits from a private driveway providing parking for one car, as well as a large rear garden.

Situated in a quiet residential area, Islip Gardens enjoys a friendly community atmosphere with easy access to local shops, schools, parks, and transport links. Northolt Station (Central) and nearby road connections make commuting simple, while the surrounding area offers a range of amenities for everyday convenience.

This attractive bungalow combines the practicality of single-storey living with the added benefit of a conservatory extension and private parking, making it a perfect choice for those seeking comfort, space, and a well-connected location in UB5.

Council Tax Band: D
Tenure: Freehold
Parking options: Driveway
Garden details: Rear Garden

Property Documents

Brochure
EPC
  • Address Islip Gardens, Northolt, Greater London
  • City Northolt
  • State/county Greater London
  • Zip/Postal Code UB5 5BX

Details

Updated on November 9, 2025 at 12:40 pm
  • Property ID: HZ1001_RS0159
  • Price: £520,000
  • Bedrooms: 2
  • Bathroom: 1
  • Property Type: Bungalow
  • Property Status: For Sale

Floor Plans

image

Description:

Overview

Property ID: HZ1001_RS0159
  • Bungalow
  • Property Type
  • 2
  • Bedrooms
  • 1
  • Bathroom

Mortgage Calculator

Monthly
  • Down Payment
  • Loan Amount
  • Monthly Mortgage Payment
  • Property Tax
  • Home Insurance
  • PMI
  • Monthly HOA Fees
£
%
%
%
£
£
%

What's Nearby?

Please supply your API key Click Here

Contact Information

View Listings

Enquire About This Property

Similar Listings

Compare listings

Compare