St. Brides Avenue, Edgware

  • £515,000
St. Brides Avenue, Edgware
For Sale

St. Brides Avenue, Edgware

St. Brides Avenue, Edgware
  • £515,000

Description

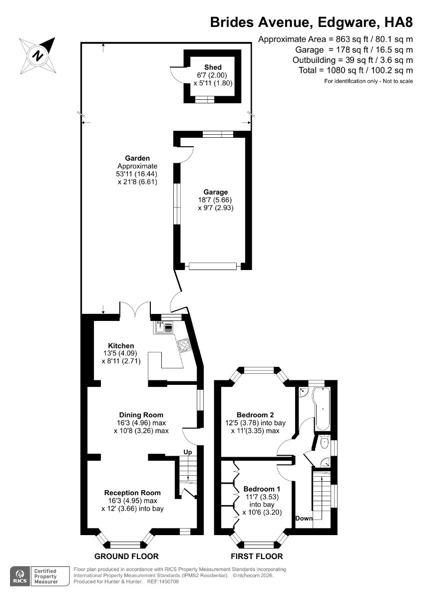
Chain-free Semi-Detached two-bedroom home featuring a bright extended kitchen, separate living and dining rooms, south-facing garden, driveway for two cars, plus garage and shed. Ideal for first-time buyers or investors.

This well-presented Chain-Free Semi-Detached Two-Bedroom property offers bright, spacious accommodation throughout and is ideal for first-time buyers, small families, or investors alike.

The ground floor comprises a welcoming living room, a separate dining room, and a generously sized extended kitchen, providing excellent space for both everyday living and entertaining. The property benefits from an abundance of natural light, creating a warm and inviting atmosphere throughout.

Upstairs, there are two well-proportioned bedrooms, including a master bedroom with fitted cupboards, alongside a family bathroom and a separate WC for added convenience.

Externally, the property boasts a south-facing garden, perfect for enjoying sunny days, as well as a private driveway providing off-street parking for two vehicles. Further benefits include a garage and a shed, offering ample storage.

Offered chain-free, this property allows for a smoother and quicker purchase process. With its practical layout, strong natural light, and desirable features, it also presents an attractive opportunity for investors, with good rental potential and long-term appeal.

Council Tax Band: D
Tenure: Freehold
Parking options: Driveway
Garden details: Rear Garden

Property Documents

Brochure
EPC
  • Address St. Brides Avenue, Edgware, Greater London
  • City Edgware
  • State/county Greater London
  • Zip/Postal Code HA8 6BS

Details

Updated on April 26, 2026 at 12:02 pm
  • Property ID: HZ1001_RS0195
  • Price: £515,000
  • Bedrooms: 2
  • Bathroom: 1
  • Property Type: Semi-Detached House
  • Property Status: For Sale

Floor Plans

image

Description:

Overview

Property ID: HZ1001_RS0195
  • Semi-Detached House
  • Property Type
  • 2
  • Bedrooms
  • 1
  • Bathroom

Mortgage Calculator

Monthly
  • Down Payment
  • Loan Amount
  • Monthly Mortgage Payment
  • Property Tax
  • Home Insurance
  • PMI
  • Monthly HOA Fees
£
%
%
%
£
£
%

What's Nearby?

Please supply your API key Click Here

Contact Information

View Listings

Enquire About This Property

Similar Listings

Compare listings

Compare